- Woonoppervlakte
- Circa 331 mยฒ
- Perceeloppervlakte
- Circa 1.845 mยฒ
- Bouwjaar
- Gebouwd in 1912
- Aantal kamers
- 15 kamers (7 slaapkamers)
Onder de Eiken heet dit monumentale statige herenhuis. Niets is minder waar. Wat een plaatje.
Na de voltooiing van dit karakteristieke woonhuis op stand, als een van de eerste in 1912 aan dit deel de Hoofdkade, werden aan de onverharde kade van het eiland tussen het nieuwe Stads-Ter Apeler kanaal en de Runde Amerikaanse Eiken geplant. Dit om het toch al fraaie, want rijke bebouwing van kapitaalkrachtigen nog wat meer jeu te geven. Toepasselijker kon het niet worden, het in de volksmond al het Golden Aailand genoemde heren-buurtje, tooide vanaf toen in de herfst in gouden bladeren van de Amerikaanse Eiken. Ze staan er nog steeds.
Ter zake: Dit is een van de best bewaarde, niet verknutselde authentieke herenbehuizingen die we in deze tijd nog aan kunnen treffen. Het wordt nu in de markt gezet door de derde bewoner in 113 jaar tijd. Alle bewoners hebben het huis met liefde en respect bewoond. Natuurlijk zijn erin de loop der decennia aanpassingen doorgevoerd die het leef comfort up to date hielden. Zo is in 1938 een extra schoorsteen opgetrokken voor de verwarming van de woonkamer, en is tegelijkertijd een badkamer op de verdieping gerealiseerd.
Ergens in de tijd is centrale verwarming aangelegd, is er deels isolatieglas geplaatst, is de keuken vervangen en is de indeling licht aangepast. Dat hoort bij een huizenleven en de toegenomen comfort normen. Dit is echter gedaan met enorm respect voor het bouwsel zelf. Nergens in het huis krijg je het gevoel dat je op een anachronismen stuit.
Op zolder treffen we nog het verblijf van het inwonende huispersoneel aan, in overduidelijk al decennia lang verlaten staat. Het is een monument van vervlogen tijden.
Eigenlijk is het onbegrijpelijk dat dit erfgoed niet is opgenomen in de lijst van rijksmonumenten. Het tijdsbeeld en de staat zijn overtuigend. Het heeft de eigenaar er niet van weerhouden de woning optimaal te preserveren.
De huidige eigenaar (vanaf 1973) heeft naast bewoning van het pand, praktijk gevoerd vanaf deze locatie. Daartoe is in 1975 een bijgebouw gerealiseerd, dat in 1980 nog eens fors is uitgebreid. Omdat de praktijk al enige jaren terug is gestopt, is het gebouw aangepast tot gastenverblijf.
Het treffende van dit bouwwerk is dat het ook nog geheel authentiek de jaren 70/80 uitstraling heeft, die door de rijksdienst voor het erfgoed tegenwoordig ook opgenomen worden in het monumentenregister.
Kortom, twee heel verschillende bouwwerken in รฉรฉn koop, beide met hun uitzonderlijke authentieke kenmerken.
Grove omschrijving van het gebodene:
Hoofdhuis: Geheel onderkelderd en opgedeeld in diverse ruimten, waaronder de wasruimte, stookruimte en wijnkelder, waar een mens gerust kan verdwalen.
Beau Etage: Geheel is stijl en minutieus geconserveerd. Geheel in stijl en klaar voor bewoning op niveau met alle monumentale details die het leven de moeite waard maken. Speciale benoeming van de entree en de hal met trappenhuis en toilet mag niet achterwege worden gelaten.
De verdieping, bereikbaar via de imposante bordestrap met enorm glas in loodwand is ruim en chique te noemen. De slaapkamers comfortabel sfeervol en de badkamer stijlvol en toereikend, Balkons en zonneterrassen in overvloed aanwezig.
De zolder is al jaren niet meer in gebruik, maar bereikbaar via een vaste trap. Hier treffen we naast bergruimte en mogelijk extra kamers het voormalige verblijf van het dienstpersoneel aan. De tijd heeft hier stil gestaan.
Het gastenverblijf, zelfstandig bereikbaar, ademt de sfeer van minder lang vervlogen tijden, die de meesten van ons nog goed voor de geest staan. Dit is feitelijk een multifunctioneel bouwwerk dat nu dienst doet als gastenverblijf voor de inmiddels uiterst volwassen kinderen en nageslacht, maar voor de volgende bewoner overduidelijk een praktijk of bedrijfsruimte zou kunnen zijn.
Voor de exacte indeling verwijzen we graag naar de plattegronden en film, omwille van de leesbaarheid van deze ode aan een monument.
Ten slotte, voor de liefhebbers buiten de regio.
Ter Apel komt helaas zeer regelmatig op de niet meest positieve manier in het nieuws aangaande zeer specifieke landelijke problematiek. Los van alle meningen die daar over bestaan, is Ter Apel een prachtig grensdorp met grote historische waarde. Denk daarbij ook aan het eeuwen oude klooster en de omgeving is verregaand tolerant voor de tekenen des tijds, de bevolking telt een kleine 10 duizend inwoners. Het is tevens goed vertoeven in de bossen en beekdalen van het mooie Westerwolde. Mede daarom zijn alle noodzakelijke voorzieningen aanwezig. Grotere steden als Groningen en Emmen zijn makkelijk bereikbaar. De aangeboden locatie bevind zich ver van de opvanglocatie, de bewoners hebben nimmer enige serieuze overlast ondervonden. Lees de volledige omschrijving
Overdracht
- Vraagprijs
- โฌ 825.000 k.k.
- Status
- Beschikbaar
- Aanvaarding
- In overleg
Bouw
- Object type
- Herenhuis, vrijstaande woning
- Soort bouw
- Bestaande bouw
- Bouwjaar
- 1912
- Soort dak
- Samengesteld dak bedekt met bitumineuze dakbedekking en pannen
Oppervlakte en inhoud
- Woonoppervlakte
- 331 mยฒ
- Perceeloppervlakte
- 1.845 mยฒ
- Inhoud
- 1.675 mยณ
- Externe bergruimte
- 56 mยฒ
- Gebouwgeb. buitenruimte
- 29 mยฒ
Indeling
- Aantal kamers
- 15 kamers (7 slaapkamers)
- Aantal badkamers
- 2 badkamers en 2 aparte toiletten
- Badkamervoorzieningen
- Sauna, douche, ligbad, toilet, 2 wastafels, en inloopdouche
- Aantal woonlagen
- 3 woonlagen, een zolder, en een kelder
- Voorzieningen
- Glasvezelkabel, natuurlijke ventilatie, rookkanaal, sauna, schuifpui, en TV kabel
Energie
- Energielabel
- G
- Energielabel registratie
- 17-01-2023
- Verwarming
- Cv-ketel
- Warm water
- Cv-ketel
- Cv ketel
- Nefit topline (gas gestookt combiketel uit 2013, eigendom)
Buitenruimte
- Ligging
- Aan rustige weg, aan vaarwater, aan water, in bosrijke omgeving, in centrum en vrij uitzicht
- Balkon / dakterras
- Dakterras aanwezig en balkon aanwezig
- Tuin
- Tuin rondom en zonneterras
Bergruimte
- Schuur / berging
- Aangebouwde houten berging
- Voorzieningen
- Elektra
Garage
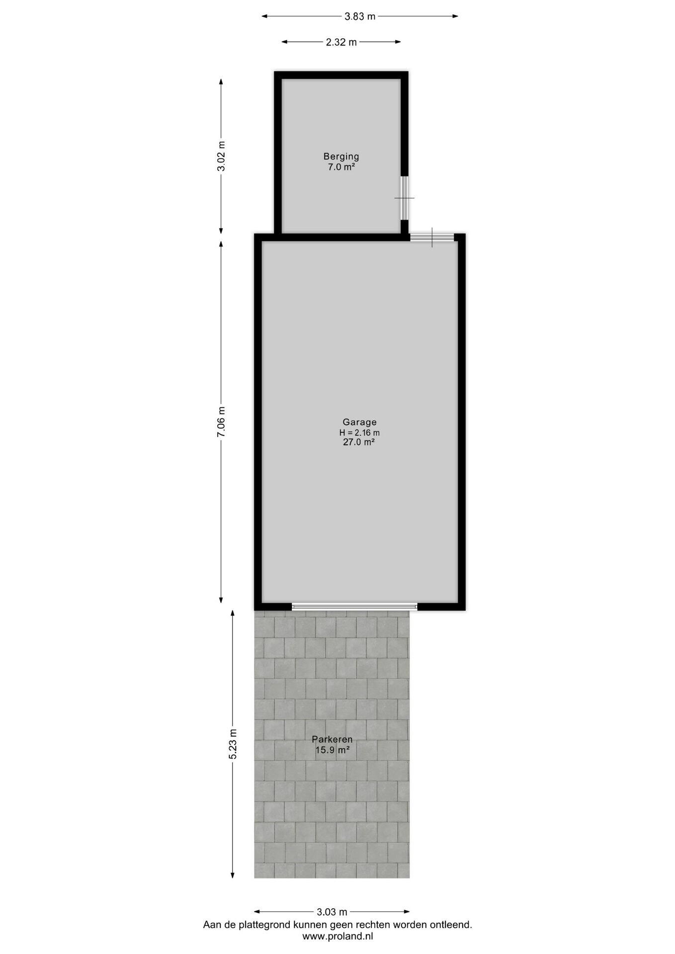
- Soort garage
- Vrijstaande houten garage
- Capaciteit
- 1 auto
- Voorzieningen
- Elektra
Energieverbruik in Ter Apel
Energielabel deze woning
Energielabel G
Publicatie energielabel: 17-01-2023
Stroomverbruik per jaar
(Gemiddelde vrijstaande woning in Ter Apel)
Gasverbruik per jaar
(Gemiddelde vrijstaande woning in Ter Apel)
* Cijfers zijn afkomstig van het CBS en bedoeld als indicatie en kunnen verschillen voor deze woning
Indicatie hypotheeklasten
Eigen inleg:
Spaargeld / overwaarde
Rente:
Laagste 10-jaars rente
Laagste 10-jaars rente
2,98% - Centraal Beheer Groen... - NHG
3,2% - Argenta Groen Hypotheek... - 80%
Laagste 20-jaars rente
3,19% - Centraal Beheer Groen... - NHG
3,57% - Argenta Groen Hypothee... - 80%
Laagste 30-jaars rente
3,34% - Centraal Beheer Groen... - NHG
3,74% - Argenta Groen Hypothee... - 80%
Hypotheek:
Bruto maandlasten: โฌ 0 p/m
Netto maandlasten: โฌ 0 p/m
Hoe berekenen we dit?
Het rentepercentage is gebaseerd op de laagste 10 jaars vaste rente voor รฉรฉn hypotheekdeel. De vermelde rente (3.2% zonder NHG) is gecontroleerd op 15-12-2025. Deze berekening is gebaseerd op een annuรฏteitenhypotheek die volledig wordt afgelost, waarbij de maandlasten gedurende de gehele looptijd gelijk blijven. De werkelijke rente en netto maandlasten kunnen variรซren, afhankelijk van uw persoonlijke situatie en de hypotheekverstrekker. Raadpleeg een financieel adviseur voor een nauwkeurige berekening en advies. Aan deze berekening kunnen geen rechten worden ontleend; het dient enkel als indicatie.
Documentatie
Kadastrale kaart
Leefomgeving
Brochure
BAG uittreksel
WOZ waarderapport
Plattegronden PDF
Bezoek onze website
Qualis Makelaars
Nationale Monumentenorganisatie
Bezichtiging
Bod uitbrengen
Waardebepaling
Zoekopdracht
Alles downloaden
Zonnegrenzen bekijken
Inwoners in Ter Apel
Cijfers voor postcodegebied 9561
- Totaal aantal inwoners
- 9515 inwoners
- Mannen
- 50%
- Vrouwen
- 50%
Inwoners in Ter Apel
Cijfers voor postcodegebied 9561
- tot 15 jaar
- 17%
- 15 tot 25 jaar
- 12%
- 25 tot 35 jaar
- 20%
- 45 tot 65 jaar
- 28%
- 65 en ouder
- 22%
Huishoudens in Ter Apel
Cijfers voor postcodegebied 9561
- Eenpersoons zonder kinderen
- 35%
- Meerpersoons zonder kinderen
- 33%
- Huishoudens zonder kinderen
- 68%
Huishoudens in Ter Apel
Cijfers voor postcodegebied 9561
- Huishoudens met รฉรฉn kind
- 8%
- Huishoudens met meerdere kinderen
- 24%
- Huishoudens met kinderen
- 32%
Woningen in Ter Apel
Cijfers voor postcodegebied 9561
- Woningen voor 1945
- 21%
- Woningen tussen 1945 en 1965
- 15%
- Woningen tussen 1965 en 1975
- 17%
- Woningen tussen 1975 en 1985
- 10%
- Woningen tussen 1985 en 1995
- 14%
Woningen in Ter Apel
Cijfers voor postcodegebied 9561
- Woningen tussen 1995 en 2005
- 10%
- Woningen tussen 2005 en 2015
- 4%
- Woningen na 2015
- 9%
- Huurwoningen
- 40%
- Koopwoningen
- 60%
Overige in Ter Apel
Cijfers voor postcodegebied 9561
- Gemiddelde WOZ waarde
- โฌ 170.000,-
- Personen onder de 65 met uitkering
- 10%
Overige in Ter Apel
Cijfers voor postcodegebied 9561
- Adressen per kmยฒ
- 517
- Stedelijkheid (schaal 1 op 5)
- 40%
MJM Makelaardij
Indien u vragen heeft of u wilt een bezichtiging inplannen, dan kunt u gebruik maken van het formulier hiernaast. Er zal daarna op korte termijn contact met u worden opgenomen.
Contact opnemen
MJM - Makelaarskantoor NVM Qualis
MJM - Makelaarskantoor Jacob Muller, een erkende NVM Qualis NMO makelaar, bevindt zich in een historisch gebouw in het hart van Westerbork.
Als onderdeel van de NVM (Nederlandse Vereniging van Makelaars), biedt MJM toegang tot het meest uitgebreide, actuele assortiment van residentiรซle en commerciรซle vastgoedobjecten in Nederland.
Onze registratie bij het RMT (Register Makelaar Taxateur), zoals te zien op www.vastgoedcert.nl, staat garant voor onze expertise.
We zijn toegewijd om u te assisteren bij de koop en verkoop van vastgoed en staan ook klaar om alle soorten taxaties uit te voeren. Voor hypotheken, verzekeringen en bouwgerelateerde diensten, introduceren we u graag aan gerenommeerde aanbieders in onze sector.
Ons streven is om uw opdrachten zorgvuldig, op tijd, volledig en betrouwbaar uit te voeren. Dit omvat een persoonlijke aanpak, gedegen rapportage en volledige verantwoording.
Wij geloven sterk in transparantie, klantgerichtheid en integriteit.
Wij nodigen u uit voor een vrijblijvend gesprek om onze methodes te bespreken en al uw vragen te beantwoorden.
Kantooruren:
Maandag tot vrijdag van 09:00 tot 18:00 uur en op zaterdag alleen op afspraak. Neem voor meer informatie of om een afspraak te maken contact op via 0593-562045 of stuur een e-mail naar info@mjm.nl
"MJM, uw partner in vastgoedwaarde"
Nieuwste reviews
-
Westdorperstraat 19
Servicegerichtheid was groot. Niet te beroerd om zelf blad te blazen om goede fotoโs te kunnen maken.Voor de samenwerking was er wederzijds...
-
Brinkstraat 17
Het is allemaal voorspoedig en vlot verlopen. De communicatie was helder en plezierig, en de makelaar was altijd beschikbaar bij vragen.
-
Veenakkers 50
Jacob blijft altijd rustig onder verschillende omstandigheden. Hij is deskundig en geeft een professioneel en logisch antwoord op vragen. Ee...